AMGO DX-12A
The AMGO DX-12A Double Scissors Lift is the ideal lift for easily and conveniently lifting all wheels off the runway for brake, tire, suspension and two or four-wheel alignment work. The DX-12A is made stronger, more versatile, and easier to use and can lift 12,000lbs.
Features
- 12,000lbs capacity for main scissor lift and 9,000lbs capacity for secondary scissor lift
- Synchronization cylinders system equipped with hose burst valves
- Safety stop device at the height of 11 3/4″, both control buttons are needed to lower the lift from 11 3/4″ to ground, with tone alarm for added safety
- Skid proof diamond runways and optional adjustable turnplate pockets
- Self-lubricating UHMW polyethylene sliders and bronze bushings
Model
DX-12A
Lifting Capacity
12,000 lbs (5,500 kg)
Lifting Time
63s
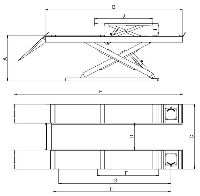
A1: Max. Lifting Height
73 5/8″ (1870mm)
A2: Minimum Height
12 5/8″ (320mm)
B: Runway Length
196 1/2″ (4991mm)
C: Overall Width
86 1/4″ (2190mm)
D: Width Between Runways
37″ (940mm)
E: Overall Length(Inc.Ramps)
257″ (6527mm)
F: Min.Four Wheel Align
85 7/8″ (2180mm)
G: Max.Four Wheel Align
166 1/2″ (4230mm)
H: Max.Two Wheel Align
172 7/8″ (4390mm)
Secondary Scissor Lifting Capacity
9,000lbs (4000kg)
I: Secondary Scissor Lifting Height
16 1/2″ (420mm)
J: Secondary Scissor Length
63″~74″ (1600~1880mm)
Gross Weight
5,706 lbs (2,588 kg)
Motor
2.0HP, 220V/60Hz Single Phase
SPECIFICATIONS
DETAILED IMAGES
SHIPPING INFORMATION