AMGO AX-12A
The AMGO AX-12A Alignment Scissor Lift is a great lift to expand your shops capacity for larger vehicles and greater workload with its rugged design and increased dependability. The hefty 6 ton lifting capacity provides the heavy-duty workload needed for mechanics to increase efficiency and productivity for greater long-run profits.
Features
- 2 dual synchronous cylinders are used to assure the optimal lifting level on both platforms
- Electro-air control system, which operates the self-lock safety mechanism
- Heavy-duty design, the X serial scissor lift uses a 5 7/8” x 3” (150 x 75mm) tube to make it stronger and assures the runways remain level during operations
- Skid proof diamond platform
- Optional Rolling Jacks:
- - J6H: 6,000 lbs with manual control
- - J6A: 6,000 lbs with pneumatic pump
- More choices:
- - Optional turnplate Kits No. 40101
- - Optional led lights Kits No. PX010
- - Optional extension Kits No. PX002
- - Optional airline Kits No. PX004
Model
AX-12A
Style
Alignment
Lifting Capacity
12,000 lbs (5,500 kg)
Lifting Time
75s
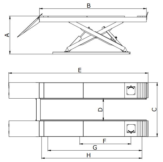
A1: Max. Lifting Height
73 5/8″ (1870mm)
A2: Minimum Height
11 3/4″ (300mm)
B: Runway Length
197 1/2″ (5018mm)
C: Overall Width
90 1/8″ (2290mm)
D: Width Between Runways
41″ (1040mm)
E: Overall Length(Inc.Ramps)
258″ (6554mm)
F: Min.Four Wheel Align
81 7/8″ (2080mm)
G: Max.Four Wheel Align
167 3/4″ (4260mm)
H: Max.Two Wheel Align
174″ (4420mm)
Gross Weight
5,785lbs (2,624 kg)
Motor
2.0HP, 220V/60Hz Single Phase
SPECIFICATIONS
DETAILED IMAGES
SHIPPING INFORMATION